ニューヨークのターミナル駅にオープン予定の大規模Apple直営店は、かなりかっこいい店になりそうだ。
INDEX
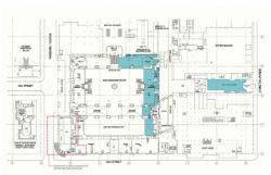
Appleは年末商戦に向けてニューヨークのグランドセントラル駅内に新たな直営店をオープン予定だが、その完成予想図を同市の都市交通局が公開している。
Appleストアが入るのは、2階の東バルコニー。総面積2万3000平方フィート(約2100平方メートル)で、賃貸料は年間110万ドルと報じられている。




AppleうわさサイトMacRumorsによると、東バルコニーでは開店に向けた改装作業が始まっているという。
advertisement