ねとらぼ
2018/04/15 11:00(公開)

仮設トイレが独自の進化を遂げていた! 高級VIP用にIoT機能、知られざる“密室”の歴史

仮設トイレの進化について、メーカーに取材しました。

 野外フェスなどに設置されている仮設トイレ。先日、利用する機会があり、ふと「たまにしか使わないせいか感じたことがないけど、仮設トイレって進化しているのだろうか」という疑問が頭に浮かびました。

 これまでに入った仮設トイレがどういう感じだったか、ちゃんと思い出せないのはきっと筆者だけではないはず。外出先で用を足したくなったとき、その場にあると助かるのですが、繰り返し入るものではないため、記憶に残りにくいのかもしれません。

 今回は、そんな仮設トイレと日々向き合ってきたメーカー・ハマネツの波多野さんに取材しました。仮設トイレには一体、どんな歴史があるんです?



advertisement

「仮設トイレの元祖」が現れたのは高度経済成長期

―― 早速なんですが、一番お聞きしたいところから。一般ユーザー感覚ではあまり実感できていないんですけど、仮設トイレって進化しているのでしょうか?

 アハハ(笑)。はい、進化はしていますよ!

 もともと弊社は陶器を扱っていた会社で、住宅設備を請け負うようになり、そこから仮設トイレも量産するようになりました。耐久性やコストの観点から素材はFRP(繊維強化プラスチック)になり、近年ではPE(ポリエチレン)などに変化しました。でも、確かに、1990年にいわゆる「ボットン便所」から水洗ポンプ式になって以降、劇的な変化というのはないかもしれませんね。


一般的に使用されているハマネツの仮設トイレ「TU-iX」


―― 確かに! 僕(1988年生まれ)の仮設トイレデビューは、青い和式のボットン便所だった気がします! ところで、「日本最初の仮設トイレ」ってどういうものだったんでしょうか?

 そうですね、最初は高度経済成長期の頃になります。

 景気が良くなり、あちこちでビルが建つようになって、建設があるということは現場があるということで、工務店やゼネコン向けに鉄板製の仮設トイレを作ったのが仮設トイレの元祖と聞いています。弊社で言いますと、住宅設備としてユニットバスの技術を応用して、日本で初めてFRPを使った仮設トイレの量産をしました。


ハマネツの仮設トイレの系譜。左から非水洗(ボットン)、FRP製、現在のPP製


 仮設トイレは仕組みだけでなく、素材面でも進化していたのか! 腹落ちしたところで業界の景気についても聞いてみました。

―― ちょっと聞きづらい話なんですけど、仮設トイレ業界の動向はどんな感じですか? 例えば、めちゃくちゃに売れた時期とかってあるんでしょうか?

 フフフ(笑)。波はあるんですけれども、1997年を境におかげさまで快調となっております。

―― 1997年……? あ、第1回「フジロック」(※)があった年ですか!

 そうです、仮設トイレは従来、主に工事現場向けに使用されていたんですけど、野外フェス、花火大会といった催事にも使われるようになりました。フェスブーム様様という感じです(笑)。ちなみに、第1回は私も参加しましたね。

―― そうか、野外に人が集まるという意味では同じですもんね。確かに野外フェスでも、仮設トイレは欠かせません。


野外イベントで実際に使われている仮設トイレ


※ フジロックフェスティバル:大規模な野外ロック・フェスティバルで、1997年夏にスタート。公式サイトによると、第1回は「大型台風の直撃を受け、2日目が中止となる非常事態に」なったとのこと。……大丈夫だったのかな、波多野さん。

advertisement

仮設トイレの種類

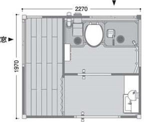
―― ハマネツさんのカタログを拝見したのですが、仮設トイレってけっこう種類があるんですね。「ネクストイレ」というタイプなんて、更衣室付きでかなり広々していますが、何用なのでしょうか?


ネクストイレ ドゥース



洋式便器に更衣室、カウンター付き手洗器がついた豪華仕様





一般的なご家庭のトイレよりも広いはず


 こちらはVIP用の仮設トイレですね。例えば、先ほどの野外フェスですと、一部出演者などにご利用いただいております。

―― なんと! 仮設トイレにもレベルがあったんですね!

 常設のトイレが古くて使いにくい建物の場合に、こういったトイレが使用されるケースもあります。公民館の詰め所だったり、公園だったり。個人で買われる方もいらっしゃいますね。常設トイレを改築するよりも、仮設トイレを買ってしまった方が安くなる場合があるんですよ。

―― 「仮設トイレを常設」ですか。なるほど、そういうのもあるのか。

 その他にも、農家がいちご狩りなどで観光客を呼ぶ業態、道の駅などにこういった仮設トイレが使用されているそうです。ちなみに個人購入の場合、ネクストイレのお値段は100万〜150万とのこと。


実際に観光農園で使用されているもの


advertisement

気になる“アレ”の問題

―― 仮設に限らず、トイレには臭いの問題があると思うんですが、ハマネツさんではどういった対策をしているんですか?

 そうですね。排せつと臭いは切っても切れない関係なので、日夜研究に取り組んでおります。

 以前は地面に穴を掘って、そこに排せつ物を溜めるような仕組みだったのですが、水栓式になり、弁と水で排せつ物にフタできるようになりました。

 最近ですと、薬品メーカー協力のもと、「ニオイもムシも出ないトイレ」という薬品の開発に成功しています。効果は名前の通りで、タンクに投入するとそれらの発生を予防できるんです。





――物理的にだけでなく、化学的なアプローチも取り入れて対策しているんですね! うーん、まさしく企業努力!

仮設トイレの未来

―― 仮設トイレがこのまま便利になっていくと、最終的には家のトイレと同じような使い心地になるのでしょうか。個人的にはウォシュレット付きになると、とてもありがたいんですが……。

 確かに「ウォシュレットを付けてほしい」というご要望は多数いただいていて、オプションになりますが装備することは可能です。でも、仮設トイレのゴールは常設トイレというわけではありません。仮設トイレは、仮設トイレなりの進化をすべきだと思います。

―― 仮設トイレなりの進化、ですか。

 例えば、弊社では最近、業界初の試みとしてIoT機能搭載トイレ「hint」を開発しました。



―― IoT! PCやスマホのように、さまざまなモノをインターネットにつなぐ仕組みのことですよね。でも、どうやってトイレにインターネットを使うんです?

 管理者向けには、補給が必要になった場合に自動通知を飛ばすなどの機能。維持管理のコストを軽減させる仕組みですね。

 利用者向けには、個々の仮設トイレの利用状況を専用Webサイトで管理して、空き状況を確認できる機能などがあります。





―― どこならすぐに入れるのかスマホで確認できるようになるんですか! トイレの行列は野外フェスなどでよく見かけますし、かなり便利になりそうですね。


 日々、製品と向き合うメーカーがあるおかげで、世の中は少しずつ、でも着実に便利になっている。よく考えれば当たり前のことなのですが、利用者側はその変化に意外と気付かないものです。

 ちなみに、IoT機能を備えるhintに関しては「今期中の市場投入を検討しています」とのこと。早ければ、次回の夏フェスで“技術の力で順番待ちを緩和した、ちょっと未来な仮設トイレ”が登場するかもしれません。

おおきち

※本ページはアフィリエイトプログラムによる収益を得ています

関連タグ

Copyright © ITmedia Inc. All Rights Reserved.

求人情報