建築家が手掛けたDIYケーススタディーを紹介。
機能的かつ、“生きられる場所”へ
文化と活気にあふれる都市空間に、U氏は彼の一部である膨大な本とともに、住むことはできるのでしょうか。ここに生きられる場所をつくるには、生活が閉じ込められた部屋の内側の空間のみを設計しても無効だと思われます。部屋の外へ広がる部屋、世界(都市、あるいは社会)に住んでいる実感を持てる場所を構想するべきだと考えました。
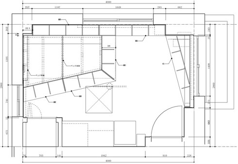
そのために、収納を効率化し生活空間を確保し、部屋に広がりのある視点をつくります。そこからは街路が見えるようにします。

部屋にベッド、ベッド下収納、デスク、テレビ台を設え、生活に必要なものを床から3分の1の高さに配置し、総延長16メートルの本棚を他の家具と組み合わせながら部屋と廊下の各所に確保します。ここまでは生活と収納のせめぎあいによる、機能的空間の設計です。



そこから、機能的空間を生きられる場所にするために、U氏の居場所と視点から空間を再編成していきます。生活に必要なものは床から3分の1の高さに収めたことで、その上の3分の2の高さには外の光と風景が見えるようになります。
ベッドはマットレスより少し大きく作り、座ったり物を置けるようにするとともに、背もたれを設えることで、お茶を飲み、寄りかかり、部屋と窓の外を見渡せるようにします。
デスクは窓に寄せて、ソファに座ると街路樹が見えるよう角度を振りました。家具の配置や向きにより部屋の広さを感じ、樹木のある街路が見えれば、自分の居場所が部屋の外まであるように思えるでしょう。



今まで締め切っていた雨戸を開けた窓の先には、プランターで草木を育てて外からの視線を和らげます。この街路を見渡せば、すでに草木を育てている人がたくさんいます。草木を植えれば、少しだけ地域社会に参加することになるし、草木の世話をすれば、外の気候を意識することになります。内壁の内側に限定されていた生活空間の範囲が、街路から都市に広がっていくことになるでしょう。
読書と思索で大いに広がるU氏の精神世界と同じく、身の回りの実空間も広がりを持つことができます。“世界に生きる”ことをU氏が実感してくれるといいのですが。


小笹泉(IN STUDIO)
1985年東京生まれ。建築家、一級建築士。内藤廣建築設計事務所にて「九州大学椎木講堂」「とらや赤坂本店」「メトロ銀座線渋谷駅舎」「JR高山駅舎・駅前広場」「日向市庁舎」を担当。2017年より一級建築士で建築家の妻と建築設計事務所IN STUDIOを主宰している。2018年に第一子が誕生し子育て中。