ねとらぼ
2020/10/30 17:00(公開)

京葉線の幕張新駅(仮称)「2023年春」に開業決定 気になる駅名は……?

何になるかな?

 東日本旅客鉄道(JR東日本)は10月30日、幕張新都心拡大地区に設けるJR京葉線新駅の開業日を2023年春に定めたと告知。駅の完成イメージ画像も公開しました。

幕張新駅
公開された幕張新駅(仮称)の駅舎外観イメージ。おや、壁にぼんやりと駅名が……書いてありますね(画像:JR東日本プレスリリース)

 京葉線の「仮称・幕張新都心拡大地区新駅(以下、幕張新駅)」は、新習志野と海浜幕張の駅間(それぞれ約1.7キロの場所)に置かれます。ホームは2面2線(10両編成対応)、駅本屋は鉄骨造1階建て。新駅開業と同時に駅前広場(千葉市の事業)の整備・供用開始も目指します。

 気になる駅名称は「決まり次第、JR東日本より告知」。2020年3月に開業した山手線の新駅「高輪ゲートウェイ駅」は駅名案の一般公募が行われ、大いに盛り上がりましたが(関連記事)、一方で公募の意義を無視した決定だと感じた人も存在しました(関連記事)。一般公募はないのかな……と推測されますが、現時点は不明です。

幕張新駅
改札内コンコースの完成イメージ
幕張新駅
ホームのイメージ
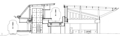
幕張新駅
幕張新駅の中央部断面図

 なお、公開された駅舎の外観イメージを拡大して薄目で見てみると……駅名が4文字、ぼんやり描かれていますね。最後は「駅」として、頭は「幕張」っぽい。「幕張新駅」……かな。もちろん「仮」なのは分かっていますが。ともあれ、どんな駅名になるのか楽しみですね!

幕張新駅
幕張新駅の設置場所
幕張新駅
新駅設置予定地(2020年5月)


Copyright © ITmedia Inc. All Rights Reserved.

求人情報